Новостной портал "Город Екатеринбург"
27 марта, Екатеринбург -0,2°
Курс ЦБ 82,13 95,0

Мы используем cookie.  Оставаясь на сайте, вы соглашаетесь с тем, что мы обрабатываем ваши персональные данные с использованием метрик Яндекс Метрика,top.mail.ru, LiveInternet.

Новости области 0+

Гаражи уходя: на Эльмаше проложат новую улицу

На Эльмаше в Екатеринбурге появится новая улица, которая свяжет улицы Фронтовых бригад и Корепина. 

Гаражи уходя: на Эльмаше проложат новую улицу
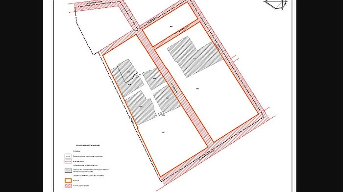
Источник фото: Фото: чертеж планировки будущего жилого квартала (территории в границах улиц Краснофлотцев – Бабушки

Пока проект носит рабочее название — «Улица Новая». Об этом сообщает Е1.RU.

Магистраль пройдёт через территорию старых гаражей и садового товарищества «Энергетик», в квартале, ограниченном улицами Краснофлотцев, Бабушкина, Корепина, Стачек и Фронтовых бригад.

Новая улица станет частью масштабного проекта жилой застройки — на этом месте планируют возвести квартал из домов высотой от 7 до 25 этажей. Он разместится недалеко от спорткомплекса «Локомотив-Изумруд» и парка Турбомоторного завода.

Проект доступен для общественного обсуждения до 17 июня — горожане могут оставить свои замечания и предложения.

Новости партнеров